Ga naar inhoud

Te koop: woonhuis Laan van Wisch 13 7061 CX Terborg

Eggink Maalderink Garantiemakelaars
Neem contact met mij op

Verkocht

€ 515.000,- k.k.

bied op deze woning

Op de hoek van de Laan van Wisch, met uitzicht naar een plantsoen en boerderij ’t Muldershuus, staat deze karakteristieke vrijstaande woning met een garage, oprit en vier slaapkamers. Dit is een woning met stijl en sfeer, die je nu of later naar eigen smaak kan moderniseren en verduurzamen. Dit is een uitstekende kans om te gaan wonen in het centrum van Terborg, om de hoek van de Paasberg en het landgoed bij Kasteel Wisch.

Je loopt zo de Hoofdstraat in richting de winkels, speciaalzaken, supermarkt en je favoriete restaurant. Voor een wandeling in de natuur zijn de Paasberg en het landgoed bij Kasteel Wisch perfect. Met de auto is het maar 10 minuten in Doetinchem en er is een goede verbinding met de A18 en de N317.

Indeling:
Begane grond:
Bewonder de fraaie, klassieke architectuur van deze vrijstaande woning en loop naar de overdekte entree. Hier zie je een bordes en een hardhouten voordeur, die toegang geeft tot de ruime hal. Fraaie elementen in de hal zijn het glas in lood raam, de donkere tegelvloer en de originele trap naar de eerste verdieping. Achter een van de deuren is een trap naar de wijn-/provisiekelder en de toiletruimte is ingedeeld met een wandcloset en een fonteintje.
Door het glas in loodraam met ruitmotief kijk je vanuit de hal naar de lichte woonkamer, met een erker bij het zitgedeelte en een aangebouwde eetkamer aan de achterzijde. Dit is een woonkamer van goed formaat en met mooie stucplafonds, voorzien van sierlijsten en inbouwverlichting.
Vanuit de eetkamer en hal is de lichte keuken te bereiken, met een mooie vloer in blokmotief die is geïnspireerd op een oude tegelvloer. De lichte hoekopstelling biedt veel bergruimte en de kookplaat, afzuigkap, oven, vaatwasser en koelkast zijn ingebouwd.
In de aanbouw aan de rechterzijde zijn de bijkeuken en garage. De bijkeuken, te bereiken vanuit de keuken, heeft een deur naar de tuin en er hangt een rvs-wasbak. De wasmachine en droger kunnen hier staan, net als een vriezer. In de naastgelegen, inpandig te bereiken garage zie je dubbele deuren naar de oprit, een plavuizen vloer en een handige bergzolder, bereikbaar via een vlizotrap.

Eerste verdieping:
De overloop, met de trappen naar de begane grond en tweede verdieping, is heel licht en ruimtelijk. Dit komt onder andere door de grote glas in loodramen in ruitmotief. Op deze verdieping zijn drie slaapkamers, waarvan twee aan de achterzijde. Een van deze slaapkamers heeft een deur naar het dakterras en de hoofdslaapkamer, aan de voorzijde, heeft openslaande deuren naar een balkon boven de erker.

De badkamer is ingedeeld met een ligbad, inloopdouche, wandcloset, bidet en een wastafel met spiegelkast. Naast het raam hangt een grote handdoekenradiator en het verlaagde plafond is voorzien van inbouwverlichting.

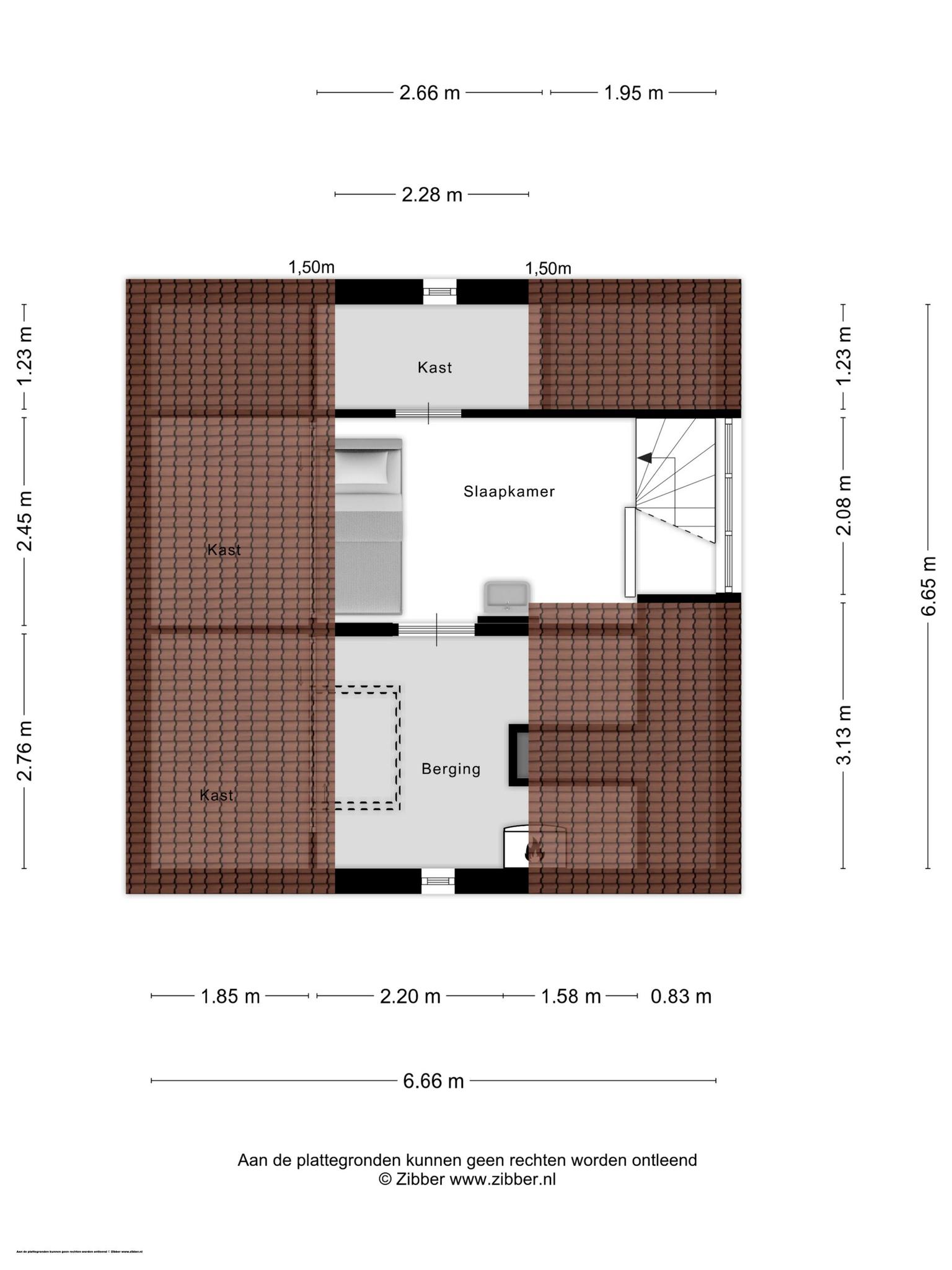
Tweede verdieping: Een hardhouten trap geeft toegang tot de tweede verdieping, waar een slaapkamer en een ruime berging zijn. De slaapkamer staat in open verbinding met de trap en in de berging, met dakraam, is de opstelling van de cv-ketel. Aan bergruimte is geen gebrek, in een bergkast en de schuinten van het dak.

Exterieur:
Bij het ontwerpen van het woonhuis is rekening gehouden met de zonligging, want de tuin is gesitueerd op het zuiden en oosten. Bomen en andere beplanting zorgen voor privacy en aan de straatkant is een lage tuinmuur gemetseld. Een dubbele poort geeft toegang tot de oprit, met ruimte voor twee auto’s. Bij gelegenheden kan de vlag worden gehesen, die goed zichtbaar is vanuit huis en vanaf de straat. Verrassend is het terras met overkapping, aan de achterzijde van dit fraaie huis.

Bijzonderheden:
– Vier slaapkamers, waarvan een op de tweede verdieping;
– Ruime oprit met garage;
– Lichte woonkamer met aparte eetkamer;
– Mooie ligging op de hoek van de straat, met aan twee kanten uitzicht naar het groen;
– Verwarming en warm water via een HR-ketel, Remeha Tzerra (2018)
– Energielabel F.
– In de koopakte zullen o.a. de ouderdoms-, asbest- en niet feitelijk bewoond clausule worden opgenomen.

  • 147 m2
  • 529 m2
  • 4

Kenmerken Laan van Wisch 13

Overdracht

Vraagprijs€ 515.000,- k.k.
AanvaardingIn overleg

Oppervlaktes en inhoud

Perceel oppervlakte529 m2
Woonoppervlakte147 m2
Inhoud626 m3

Bouw

SoortEengezinswoning
BouwvormBestaande bouw
Bouwjaar1960
Dak typeZadeldak
IsolatievormenGedeeltelijk dubbelglas
EnergielabelF

Indeling

Aantal verdiepingen3
Aantal kamers5
Aantal slaapkamers4
Aantal badkamers1

Maandlasten

Ligging Laan van Wisch 13

Voorzieningen

Centraal gelegen informatie over de buurt

Aantal inwoners

In de gemeente

39.568

Vergelijkbaar woningaanbod