Ga naar inhoud

bouwkavel 51

7007 DC Doetinchem

Verkocht

€ 187.500,- Vrij op naam

  1. Home>
  2. Nieuwbouw>
  3. >
  4. bouwkavel 51

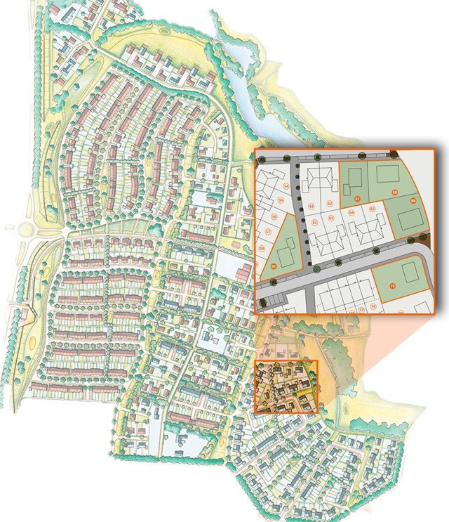
In Buitenplaats Wijnbergen – de nieuwe uitbreidingswijk van Doetinchem – worden ongeveer 750 nieuwe woningen gerealiseerd. De wijk wordt verdeeld in vier buurten. Buitenplaats Wijnbergen biedt je de kans om je eigen, unieke droomhuis te (laten) bouwen.

Je bepaalt helemaal zelf hoe je woning eruit komt te zien. Samen met je eigen architect maak je jouw woningontwerp helemaal naar wens. Vervolgens kan de door jouw gekozen aannemer je woning gaan bouwen. Een nieuwbouwhuis helemaal op maat gemaakt!

STEDENBOUWKUNDIGE RANDVOORWAARDEN
Om de informele sfeer van het deelgebied te benadrukken staan de woningen in een verspringende rooilijn, binnen een bandbreedte van 3 tot 5 meter. Voor enkele kavels geldt een vrije rooilijn. De rooilijnen zijn aangegeven op de kavelkaarten die per kavel beschikbaar zijn. Daarnaast zijn deze weergegeven in het Beeldkwaliteitsplan Wijnbergen.

BEELDKWALITEIT ARCHITECTUUR

ARCHITECTONISCH THEMA
Voor de architectuur geldt de jaren ’30 als referentie. Een zeer herkenbaar element in deze stijl zijn de nadrukkelijke daken met grote overstekken. Deze architectonische stijl biedt veel afwisseling en sluit aan bij de dorpse uitstraling
van het hele plan.

AAN-, UIT- EN BIJGEBOUWEN
Kenmerkend voor de jaren ’30 architectuur is de gedifferentieerde opbouw met veel mee ontworpen uitbouwen als entrees, erkers, serres en loggia`s. Deze ondergeschikte bouwdelen mogen worden uitgebouwd op
maximaal twee meter afstand van de zijerfrgens. De woningen gelegen aan de Kapperskolk hebben in principe geen (losse of aangebouwde) garage, tenzij deze is opgenomen in de hoofdmassa. Naast de woning dient voldoende ruimte te zijn voor het plaatsen van twee auto`s naast elkaar (breedte is minimaal 5,5 meter). Tevens gelgt hier voor de bijgebouwen een afstand van 2 meter uit de zijerfgrens.

DETAILLERING
De voorgevel heeft een geprononceerd karakter. Bij de horizontale geleding zijn de nadrukkelijke kap met omtimmerde dakoverstek en omlopende goten en horizontaal gelijnde ramen belangrijke elementen. Verticale accenten zijn bijvorbeeld een smalle kopgevel, een schoorsteen en een langwerpig hoog raam. Ook de entree kan als verticaal accent vormgegeven worden. De jaren ’30 architectuur kent een hoogwaardige detaillering.

MATERIALISATIE EN KLEURGEBRUIK
Het samenhangende materiaal en kleurgebruik in het deelgebied zorgt voor een eenheid. De gevels zijn van rode baksteen. De daken zijn gedekt met zwarte keramische dakpannen. De kozijnen zijn van hout en geschilderd in wit.

ARCHITECTONISCHE EENHEDEN
Variatie is een kenmerk van het deelgebied. Er mogen daarom nooit twee dezelfde of teveel op elkaar lijkende vrijstaande woningen of tweekappers naast elkaar worden gerealiseerd.

BOUWMASSA
De woningen hebben een robuuste hoofdmassa met een nadrukkelijke kap. Ze zijn gedifferentieerd en gevarieerd vormgegeven. De woningen zijn één tot twee lagen hoog met een steile kap. Voor het afwisselende beeld zijn de
hoofdmassa’s verbijzonderd. De hoofddakvorm is een zadeldak, een eventueel tweede kapvorm is ondergschikt in vorm en richting. Daarnaast kunnen de kavels gelegen aan de Kapperskolk ook een sptisboogdak hebben.

Overdracht

StatusVerkocht
Prijs€ 187.500,- Vrij op naam

Oppervlaktes en inhoud

Inhoud0 m3

Bouw

Geen eigenschappen

Indeling

Aantal verdiepingen1
Aantal kamers1

Maandlasten

Ligging