Ga naar inhoud

Te koop: woonhuis Nijverheidstraat 21 7061 BA Terborg

Eggink Maalderink Garantiemakelaars
Neem contact met mij op

Verkocht

€ 285.000,- k.k.

bied op deze woning

In een rustige eenrichtingsstraat staat deze lichte twee-onder-een kapwoning met een mooie uitbouw op de begane grond en eerste verdieping. Hierdoor heeft deze woning veel meer ruimte dan de buitenzijde doet vermoeden; perfect voor een gezin en om vanuit huis te werken. Parkeren kan op eigen terrein, er zijn twee bergingen en de tuin met overdekt terras nodigt je uit om bij mooi weer buiten te zitten.

Je kunt lopend naar de Walstraat en Hoofdstraat, bekend vanwege de winkels, speciaalzaken en gezellige horeca. Verder woon je in de nabijheid van de supermarkt en vanaf het station vertrekt de trein, richting Winterswijk en Arnhem. Met de auto is het iets meer dan een kwartier naar de A12, de A18 en het mooie Doetinchem.

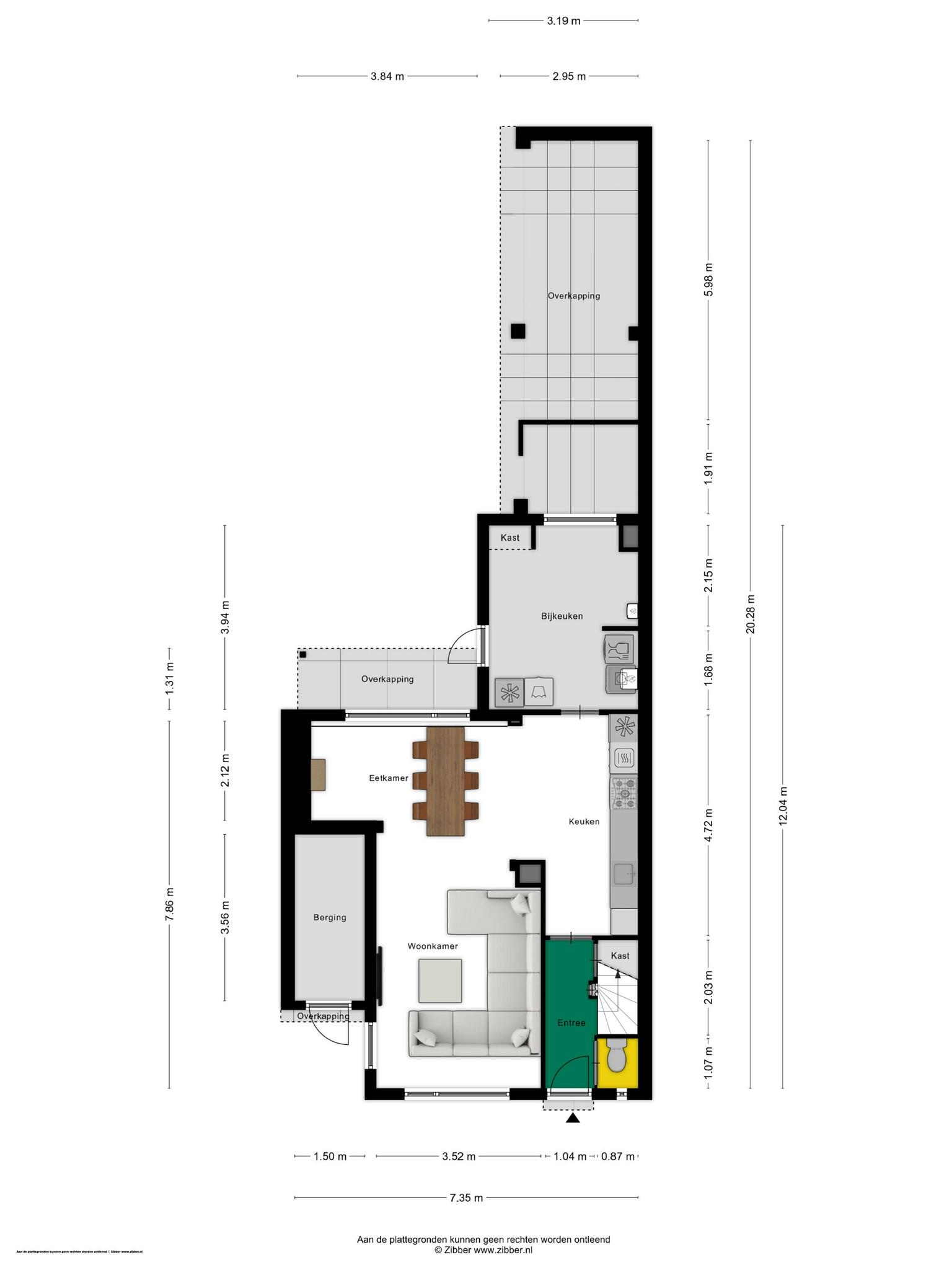
Indeling:
Begane grond:
Aan de linkerzijde is een deur, die toegang geeft tot een (fietsen)berging. De andere deur, aan de voorzijde, leidt naar de hal. Hier zijn, aan de rechterzijde, de toiletruimte met wandcloset en de trap naar de eerste verdieping. Onder deze trap is een handige bergkast en je ziet hier de meterkast met een smalle, hoge deur.
Vanuit de hal loop je de keuken in, die in open verbinding met de woon-/eetkamer staat. Het resultaat is een lichte, sfeervolle leefruimte met een eikenhouten vloer en een fraaie, grote pelletkachel. Het zitgedeelte is aan de voorzijde en aan de achterzijde, bij het eetgedeelte, hangt een airco-unit.
In de keuken valt je oog op de meer dan 4.50 meter lange wandopstelling (2014), met onder- en bovenkasten en vele lades. Het aanrechtblad en de achterwand zijn hebben de uitstraling van natuursteen en de 5-pits gaskookplaat, afzuigkap, oven, magnetron en koelkast zijn ingebouwd. In het verlengde van de keuken is de ruime, verwarmde bijkeuken waar de wasmachine, droger, vriezer, vaatwasser en andere spullen kunnen staan. Ook kun je deze ruimte gebruiken als werkkamer of hobbyruimte, want ruimte is er genoeg.

Eerste verdieping:
Heb je beneden alles gezien? Dan is het tijd om de eerste verdieping te ontdekken! Vanaf de overloop zijn drie slaapkamers en de badkamer te bereiken. De master bedroom en badkamer bevinden zich in de aanbouw, met uitzicht naar de achtertuin. In de slaapkamer is ruimte voor een groot tweepersoonsbed en de badkamer (2014) is ingedeeld met een inloopdouche, whirlpoolbad en een wastafel.
De tweede slaapkamer, met een raam in de zijgevel, is ingericht als tweepersoonskamer. Aan de voorzijde is de derde slaapkamer, geschikt als kinderkamer of werk-/studeerkamer. Deze kamer heeft een diepe inloopkast, waar nu een open kledingkast staat. In alle slaapkamers hangt een airco-unit, die kan koelen en verwarmen.

Zolder:
Op de overloop is een luik, met toegang tot de bergzolder. Er zijn twee ruimtes, waarvan een met een groot dakraam.

Exterieur:
Bij aankomst heb je het al gezien; er is een oprit waardoor je op eigen terrein kunt parkeren. De voortuin is ingedeeld met een stuk gras en gevarieerde, deels groenblijvende beplanting.
Vanuit de bijkeuken is de achtertuin te bereiken, gesitueerd op het noordwesten. Het grote, overdekte terras is bij mooi weer een heerlijke plek om van het buitenleven te genieten. Er is ruimte om de fiets neer te zetten en houten schuttingen zorgen voor privacy. Verder is er groen in de tuin en biedt de boom niet alleen schaduw, maar ook een goede plek om te schommelen.

Bijzonderheden:
– De spouwmuren zijn geïsoleerd;
– Houten en kunststof kozijnen met dubbel glas (m.u.v. berging);
– Verwarming en warm water via een HR-ketel;
– 18 zonnepanelen op het platte dak;
– Aanbouw aan de achterzijde (begane grond en eerste verdieping);
– Drie ruime slaapkamers;
– Energielabel C.

  • 119 m2
  • 204 m2
  • 3

Kenmerken Nijverheidstraat 21

Overdracht

Vraagprijs€ 285.000,- k.k.
AanvaardingIn overleg

Oppervlaktes en inhoud

Perceel oppervlakte204 m2
Woonoppervlakte119 m2
Inhoud441 m3

Bouw

SoortEengezinswoning
BouwvormBestaande bouw
Bouwjaar1954
Dak typeDwarskap
IsolatievormenMuurisolatie, Dubbelglas
EnergielabelC

Indeling

Aantal verdiepingen2
Aantal kamers4
Aantal slaapkamers3
Aantal badkamers1

Maandlasten

Ligging Nijverheidstraat 21

Voorzieningen

Centraal gelegen informatie over de buurt

Aantal inwoners

In de gemeente

39.568

Leeftijd

in percentages van totaal

Huishoudsamenstelling

in percentages van totaal

37%

20% NL

31%

20% NL

32%

20% NL

Vergelijkbaar woningaanbod