Ga naar inhoud

Te koop: woonhuis Lage Veld 28 7122 ZG Aalten

Eggink Maalderink Garantiemakelaars
Neem contact met mij op

Verkocht

€ 335.000,- k.k.

bied op deze woning

Instapklare en sfeervolle woning aan het Lage Veld in Aalten! Deze uitgebouwde woning heeft een ruime woonkamer, een mooie keuken met bijkeuken, vier slaapkamers en een moderne badkamer met grote inloopdouche en tweede toilet. In de achtertuin staat een prachtige veranda en het achterliggende plantsoen zorgt ervoor dat je heel vrij woont.

Het Lage Veld is een rustige straat, waar kinderen alle ruimte hebben om buiten te spelen. Er is openbare parkeergelegenheid voor de deur en op verschillende parkeerpleintjes. Verder zie je dat er veel groen in de wijk is, wat het tot een aantrekkelijke plek maakt om te wonen.
Via de Willemstraat en de Hogestraat fiets je binnen 5 minuten naar het centrum van Aalten. Aalten heeft vele voorzieningen waaronder supermarkten, winkels, sportverenigingen, scholen en een treinstation.

Indeling
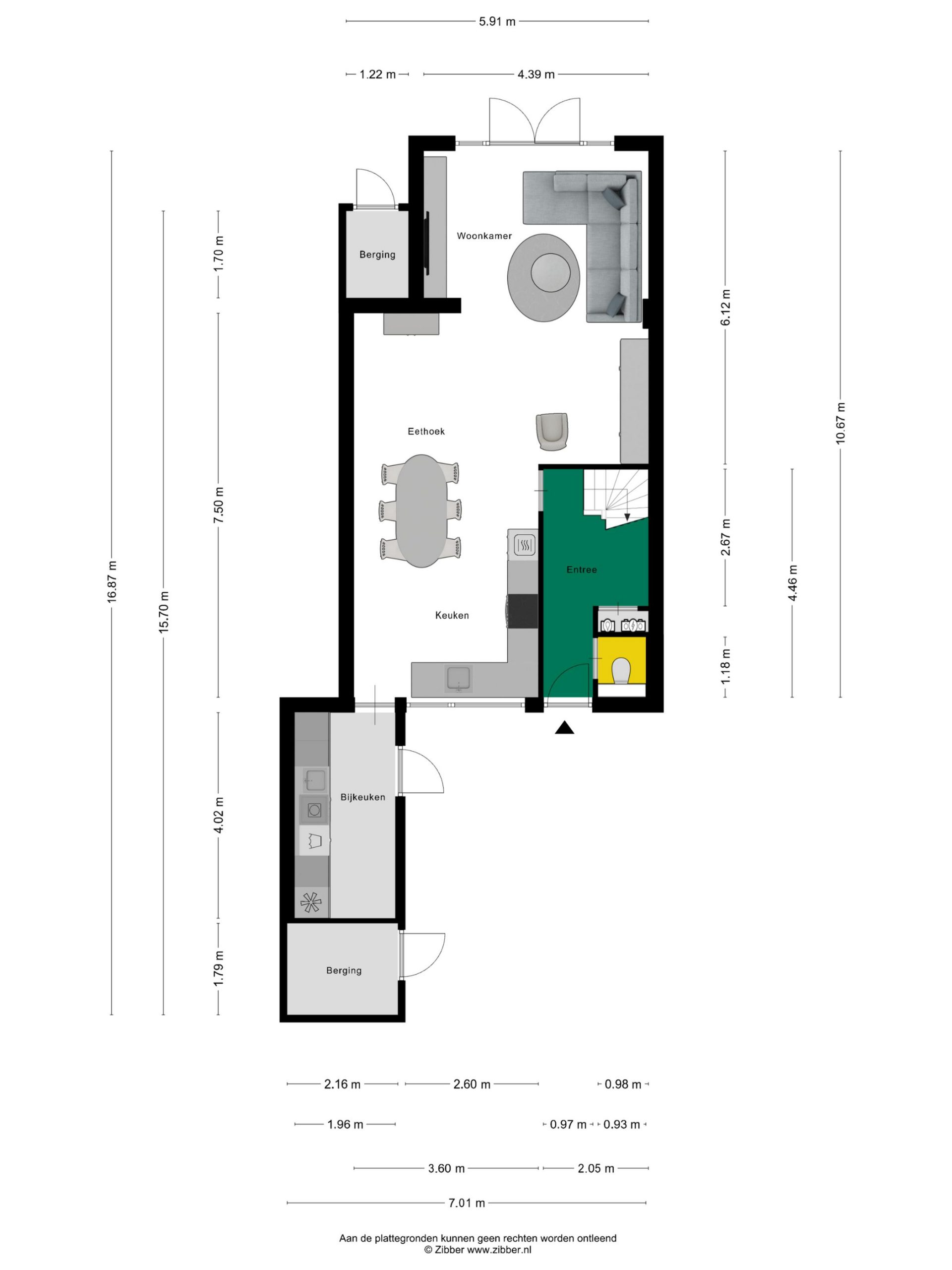
Begane grond:
De donkergrijze kozijnen en ramen, de houten (fietsen)berging en de mooie voordeur geven deze woning een mooie uitstraling. Als je de sleutel hebt, dan kun je via de voordeur of de deur van de bijkeuken naar binnen.
In de hal zijn de meterkast, trapopgang en de vernieuwde toiletruimte met wandcloset. Lichte, neutrale kleuren bepalen de sfeer en de afwerking is fraai. Dit geldt niet alleen voor de hal, maar ook voor de woonkamer en open keuken.
In 1996 is de woonkamer aan de achterzijde uitgebouwd, waardoor de ruimte een stuk groter is geworden. Aan de tuinzijde, bij de openslaande deuren, is het zitgedeelte en het eetgedeelte grenst aan de keuken. Voor een 6-persoonstafel, een dressoir, wandmeubel en een grote hoekbank is meer dan genoeg plek.
De keuken is in 2020 vernieuwd. Er staat een lichte hoogglans hoekopstelling met een stijlvol aanrechtblad en achterwand, brede lades en kasten bij het spoelgedeelte. Aan beide kanten van de afzuigkap hangt een plank voor kopjes en andere keukenspullen. Verder zijn er een inductie kookplaat, koelkast en een combi-oven ingebouwd. Erg handig is de bijkeuken met een spoelbak, meerdere kasten en de aansluitingen voor de wasapparatuur.

Eerste verdieping:
Op de overloop zie je, net als beneden, lichte kleuren die de sfeer bepalen. De paneeldeuren zijn fraai en op de overloop is een vaste trap naar de tweede verdieping. Achter een van de deuren is de badkamer (2017) met een inloopdouche, tweede toilet en een wastafelmeubel met spiegelkast. Houtlook tegels zijn gecombineerd met grote zandkleurige tegels en mooie accessoires, waaronder het handdoekenrek.
Aan de voorzijde is een ruime slaapkamer, ingericht als kinderkamer. De tweede slaapkamer is aan de achterzijde, net als de master bedroom. In deze kamer is een fraaie kastenwand gemaakt, met een nis om een grote tv aan de muur te hangen.

Tweede verdieping:
De overloop op deze verdieping biedt toegang tot twee bergingen en de vierde slaapkamer, met een groot dakraam aan de voorzijde. Ook deze kamer is fraai afgewerkt, waardoor je zo kunt beginnen met inrichten. Wil je meer ruimte, dan is het mogelijk om een dakkapel te plaatsen.

Tuin:
Openslaande deuren in de woonkamer geven toegang tot de achtertuin op het oosten. Blikvanger is de circa 18 m2 grote veranda, die nu is ingedeeld met een loungebank en een tafel met stoelen. De aansluitende berging geeft toegang tot het achtergelegen plantsoen met een voetpad langs de Boven Slinge. Bij aankomst heb je de voortuin gezien, die geheel is bestraat. De erfafscheiding aan de kant van het trottoir is begroeid met klimop, dat ook in de winter groen is.

Bijzonderheden:
– Modern en instapklaar woonhuis;
– Voorgevel is in 2019 opnieuw gevoegd;
– Uitbouw aan de achterzijde (1996), dakbedekking vernieuwd in 2024;
– Platte dak van de bijkeuken is in 2018 geïsoleerd;
– Overdekt terras (2019) in de tuin;
– Houten kozijnen met HR++ beglazing (m.u.v. badkamer raam);
– Verwarming en warm water via een HR-ketel (Atag, 2012, eigendom);
– Energielabel C

  • 125 m2
  • 163 m2
  • 4

Kenmerken Lage Veld 28

Overdracht

Vraagprijs€ 335.000,- k.k.
AanvaardingIn overleg

Oppervlaktes en inhoud

Perceel oppervlakte163 m2
Woonoppervlakte125 m2
Inhoud450 m3

Bouw

SoortEengezinswoning
BouwvormBestaande bouw
Bouwjaar1974
Dak typeDwarskap
IsolatievormenDakisolatie, Muurisolatie, Dubbelglas, HR glas
EnergielabelC

Indeling

Aantal verdiepingen3
Aantal kamers5
Aantal slaapkamers4
Aantal badkamers1

Maandlasten

Ligging Lage Veld 28

Voorzieningen

Centraal gelegen informatie over de buurt

Aantal inwoners

In de gemeente

27.047

Leeftijd

in percentages van totaal

Huishoudsamenstelling

in percentages van totaal

30%

20% NL

36%

20% NL

34%

20% NL

Vergelijkbaar woningaanbod